システム内容説明

ANDES電匠

ANDES電匠は、電気設備工事に関わる様々な図面作成業務を効率化する為に作られたCADシステムです。

電気設備工事に関わる設計図・施工図・電力会社の申請書類などを素早く仕上げることができます。

自動補正機能が搭載されていますので、電気設備図についての知識が無い方でも簡単に図面を仕上げることができます。

また、電力会社の申請書・施工証明書や、お客様への提案図面(明かりプラン図)、積算前の使用材料拾い出しなど、様々なシーンでご利用いただけます。

本丸EXv2

⼯事積算⾒積システム「本丸EXv2」は、「電気」・「設備」・「防災」業向けの見積を、誰でも簡単に作成することができるシステムです。
案件の管理やその工事に関連する書類を一括管理することができます。社内情報の⼀元化により、過去の⾒積の再利⽤やExcelデータとの連携機能により、⾒積の作成にかかる時間を⼤幅に短縮することができます。
また、「材料拾い集計システム 拾いEXv2」や「⼯事原価管理システム⼆の丸EXv2」と連携することにより、業務の最適化と利益の向上に役⽴ちます。

⼆の丸EXv2

工事原価管理システム「⼆の丸EXv2」は、工事ごとの原価・請求・入金の管理ができる、設備業向けの原価管理ソフトです。

⼯事の進捗状況をいつでも確認ができ、社内原価情報の見える化・社内業務の改善に役⽴てることができます。多くの資材を取り扱う設備業者でも、簡単に管理・運用する為の機能は必見です。

請求処理や⼊⾦処理・予実管理などの豊富なオプション機能を取り揃えております。

拾いEXv2

「CADデータ」や「PDFファイル」、「画像」図面をパソコンに読み込んで、画面上から資材を選択してマウスでクリックするだけで正確な拾い出し作業が行えます。各種CADデータへの変換機能や、材料集計・並び替え、拾い出し印刷・Excelデータへの出力(CSV)が可能で、積算見積システム「本丸EXv2」との連携により見積作成が大幅に軽減されます。また、拾いの軌跡(配管・配線)が残るので、拾い漏れを防ぐことができます。

Gaia10

経費計算結果から最低制限価格や調査基準価格を算出し、入札金額をシミュレーションできます。また、工事価格から直接工事費の逆算も可能。既に全体予算が決定しているときの工事費の割り出しなどに威力を発揮します。

工事価格から逆算した最低制限価格の上限・下限金額をグラフィカルに表示。どの価格帯の割合が多いか瞬時に把握できます。

みつもりくんie2

誰にでも簡単に積算ができる内訳書作成オールインワンシステム。

事前・事後公表の見積業務の効率化を図れます。

消防くん

消防くんV4は建築基準法により防火対象物と認定された建築構造物に対する消防用防災設備の 試験・点検に関する結果報告書作成システムです。

さらに、年間保守のサービスをご利用いただくとこで 書式の改正があっても最新版のご提供を行わせていただいております。

利用中に書式が古くなっても更新することができるため安心してソフトを利用いただけます。

ANDES電匠for消防

ANDES電匠for消防は、消防設備工事に関わる様々な図面作成業務を効率化する為に作られたCADシステムです。

電気設備CAD「ANDES電匠」の配線機能と水道設備CAD「ANDES水匠」の配管機能を搭載しているので、自動火災報知設備等の配線が必要な図面と屋内消火栓設備、スプリンクラー設備等の配管が必要な図面双方の作図が可能です。

消防設備工事に関わる平面図・アイソメ図・系統図、各種届出書類などを素早く仕上げることができます。

ANDES水匠for申請

ANDES水匠for申請は、水道工事に関わる様々な図面作成業務を効率化する為に作られたCADシステムです。

水道申請に関わる書類・図面を素早く仕上げることができます。

自動機能を使うことで、水道申請の知識が無い方でも簡単に書類を仕上げることができます。

また、現場で必要となる設計図や施工図作成、管割図や作業日報などの本管図面作成、お客様にリフォームや増改築提案を行う際に活用いただくプラン図作成など、様々なシーンでご利用いただけます。

ANDES水匠for本管

本管工事を行う際に発生する日々の作業日報作成や使用材料の集計、竣工時の管割図作成、その他の書類や図面の作成等、 以外に時間が掛かる作業が多くあります。

ANDES水匠for本管では、これらの図面や書類を簡単に作成できます。

独自のノウハウで設計図や竣工図を驚きの速さで仕上げます!

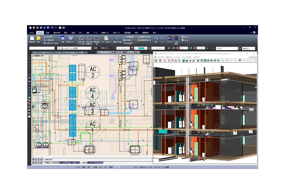
FILDER CeeD 電気

建築設備CAD「FILDER CeeD(フィルダーシード)」は、BIM対応の最新設備CADです。

Officeライクの優しい操作性、大容量図面でもラクラク操作できます。

AutoCADやJw-cadをはじめ他CADの図面データとも高精度の互換性を実現し、読込みや書出しでのストレスを感じさせません。

設備CAD FILDER CeeDは、図面作図時間を効率化させます。

今後ますます加速する設備設計、施工での3次元データ化(3D-DXF/DWG)にも標準対応なので安心してご使用いただけます。

Gaiaクラウド

『Gaia Cloud』が目指したのは技術者の思考や業務プロセスを「賢く補完」する積算です。

アプリケーションが自動的にデータを更新し、精度の高い結果を導きます。

積算ミスが発生しにくい仕組みと、誰が見てもわかりやすいユーザーインターフェース。

さらに、かゆいところに手が届く充実した機能を搭載し、お客様の業務をささえる「やさしい積算」を実現します。

拾いの匠AI

拾いの匠AIは、建設業に特化したAIによる材料拾い出しシステムです。

定められた図面記号を事前に学習し図面内から同形状の機器を自動的に拾い出します。

拾い出した部材は、一部材毎に目視で確認可能ですので誤認識による拾い間違いも未然に防げます。

配線・配管などの長さ物や角ダクトなどの面積拾いも可能です。

拾い出した結果はCSV出力・材料帳票に出力しての確認や本丸と連携して見積もり作業の工数削減にも貢献します。

PlannerEX

建物毎の台帳管理と予定管理(スケジュール管理)が⾏えるシステムです。

作業の進捗状況や連絡状況、現場の⼊出退などを誰でも簡単に把握し管理することができます。

作業報告書システムから出⼒されたCSVデータの取り込みや、⼯事原価管理システム「⼆の丸EX」へのデータ転記が⾃動で⾏えるシステムです。

見積A

電気工事に必要な商品マスタをそろえた見積サポートソフトです。

また、雑材消耗品や労務費などの計算をボタン一つですることができます。

表題を変更して、請求書や納品書なども作成でき、作成見積の一覧も表示できるので、民間工事や小さめの官公庁の工事への見積もりにとてもおすすめです。

上出来BEST8

上出来Best8は、土木建設業における施工管理向けトータルシステムです。

製品ラインナップ数は30種類を超え(※オプションを含む製品数です。)、出来形・展開図・測量といった基本ソフトウエアから、TS出来形に対応したツールやMC/MG(マシンコントロール/マシンガイダンス)に対応したツールなど、変わりゆく管理体制にも対応できるソフトウエアです。

監視カメラ

現場に赴き、現在の使用状況・設置場所・防犯対策ルート等の調査からはじめ、監視エリアマップなど各種図面の作成・機器取付配線工事・ネットワーク接続設定、保守まで一括して、監視カメラの新規・追加の設計・設定を行います。

Creo Elements

Creo Elements/Proは、米国PTC社が開発する業界トップレベルの3DCADツールです。

また、Creo Elements/Proは多様なオプション製品群を有しており、設計(CAD)だけでなく製造(CAM)・解析(CAE)さらには設計データを有効活用する為のデータ管理システム(Windchill等)ともシームレスに繋がる、非常に拡張性に優れた3DCADツールです。

製造業における継続的な業務改善を強力に支援致します。